更新時間:2024-07-17
點擊次數:738
在此前介紹空間分辨率的文章中我們曾科普過,影響空間分辨率的主要因素有:射線源焦點尺寸、探測器孔徑(探元像素)尺寸、工業CT設備平臺的幾何放大倍數、重建算法等。射線源焦點尺寸通常使用JIMA 卡檢測,而探測器的像素分辨能力檢測測試,則需要使用另一個工具——雙絲像質計。
分辨率(力)指標通常是以單位長度上可分辨兩個相鄰細節間最小距離來測定。它受幾何不清晰度和固有不清晰度的綜合影響。幾何不清晰度與焦點尺寸和放大倍數密切相關,當焦點尺寸較小且放大倍數適當時,圖像中的細節能夠更為清晰地呈現。而固有不清晰度則主要由探測器的像素尺寸決定,像素尺寸越小,探測器捕捉到的圖像細節就越多,圖像的分辨率也相應的越高。


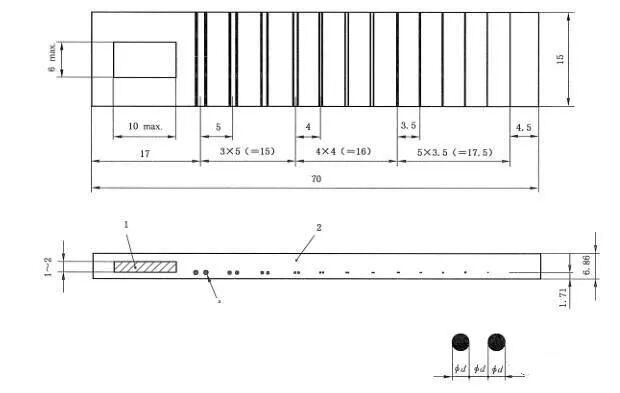
在使用雙絲像質計時,應將其置于被檢物體的源側,并盡可能地靠近射線束軸線,以確保測量結果的準確性。其金屬絲與數字圖像的行或列傾斜角度應為2°到5°。
使用雙絲像質計評估數字圖像的質量,通過調整系統到較優圖像成像狀態,掃描獲得DR圖像,包括調整系統的放大倍數和射線源的焦點尺寸到適合的狀態(保證穿透工件的同時,確保圖像曝光充足),通過對DR圖像來評判細絲之間的干涉條紋不再清晰可見,從而確定分辨率。

實際檢測區分絲對能否清晰,一般不是用肉眼直接再圖像上判定,而是利用數字射線設備自帶的符合標準的軟件進行測量。測量得到的首對雙峰調制度值小于20%的絲對,其絲對尺寸則代表了探測器在一定放大倍數下數字圖像中可分辨的最小幾何尺寸。例如下圖這個案例中D12雙絲線對直徑即為該圖像的分辨力值。
